5th–6th Floor Duplex Apartment with Veranda – Alimos Riviera Residences
Description
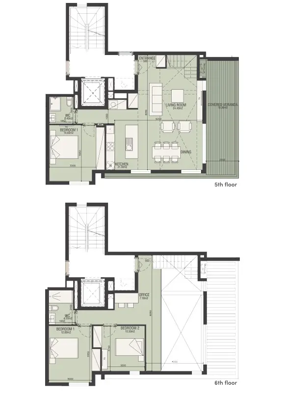
This sophisticated duplex apartment in Alimos offers a total of 138.17 m², thoughtfully split between the fifth floor (79.28 m²) and sixth floor (58.89 m²). Its design emphasizes light, openness, and a seamless connection to the outdoors.
A 19.19 m² covered veranda extends the living space, providing the perfect setting for outdoor dining and relaxation. With 3 bedrooms and 2 bathrooms, this residence is ideal for families or those seeking a spacious coastal home. Parking and storage are included, ensuring both comfort and practicality.
Key Features:
- 138.17 m² duplex apartment across 5th & 6th floors
- 3 bedrooms | 2 bathrooms
- 19.19 m² covered veranda
- 1 parking space | 1 storage room
- Contemporary urban-coastal living design
- Just 350m from Alimos beaches & marina
- Easy access to Hellinikon project and Athenian Riviera lifestyle
- Secure investment | Golden Visa eligible
Alimos Riviera Residences – Contemporary Living by the Coast
Just 350m from the sandy beaches of Alimos and minutes from the marina and the Hellinikon project, this modern six-story residential complex redefines coastal urban living in Athens. Designed with contemporary architecture and top-quality finishes, it offers controlled access, covered parking, and a selection of one- to three-bedroom apartments and duplexes.
Residents enjoy the vibrant lifestyle of the Athenian Riviera, with seaside promenades, beach clubs, dining spots, and leisure hubs all within reach. Whether as a primary residence or investment opportunity, Alimos Riviera Residences blend comfort, security, and long-term value in one of Athens’ most sought-after southern suburbs.
Request Information
For more information, or to book a private viewing (virtually or on location), contact one of our advisors using the form below.







